
5
3
3
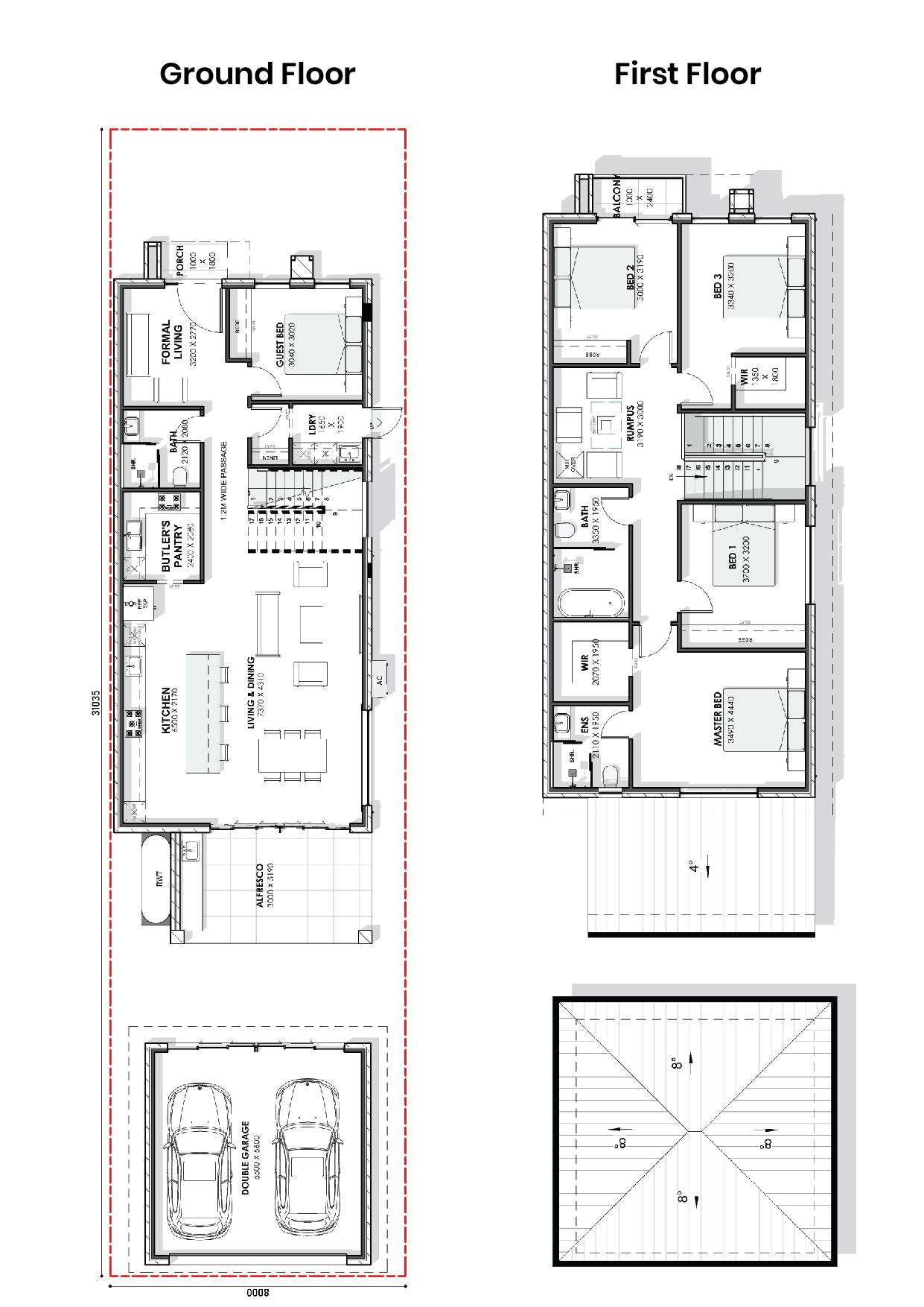
Double Garage

Master Bedroom: 3.49m x 4.44m
Bedroom 1: 3.70m x 3.20m
Bedroom 2: 3.00m x 3.19m
Bedroom 3: 3.34m x 3.20m
Guest Bed (Bed 5): 3.04m x 3.02m
Living & Dining: 7.37m x 4.31m
Formal Living: 3.20m x 2.77m
Rumpus (Upstairs): 3.19m x 3.00m
Kitchen: 6.50m x 2.17m
Butler’s Pantry: 2.40m x 2.08m
Alfresco: 3.00m x 5.19m
Double Garage: 5.50m x 5.60m
Master Ensuite: 2.11m x 1.95m
Main Bathroom (Upstairs): 3.35m x 1.95m
Guest Bathroom (Ground): 2.12m x 2.08m
Laundry: 1.65m x 1.90m
Master Walk-In Robe: 2.07m x 1.95m
Bedroom 3 Walk-In Robe: 1.35m x 1.80m
Balcony: 1.00m x 2.40m
Front Porch: 1.00m x 1.80m


