
5
3
3
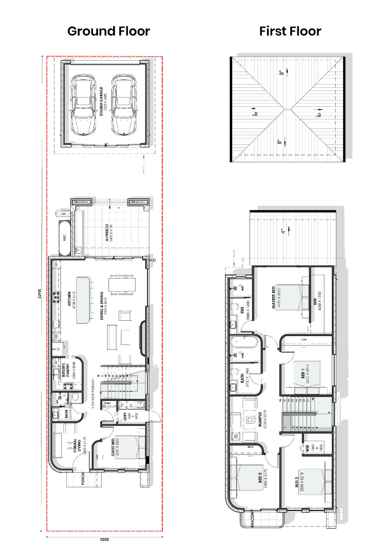
Double Garage

Living & Dining: 7.4m x 4.31m
Kitchen: 6.73m x 2.17m
Butler’s Pantry: 2.3m x 2.08m
Formal Living: 3.2m x 2.71m
Guest Bed: 3.01m x 3.02m
Ground Floor Bathroom: 2.02m x 2.08m
Alfresco: 3.5m x 5.19m
Laundry (LDRY): 1.65m x 1.9m
Double Garage: 5.5m x 5.6m
Porch: 1.0m x 2.39m
Master Bed: 4.25m x 3.5m
Master Ensuite (ENS): 3.0m x 1.45m
Master Walk-In Robe (WIR): 4.25m x 1.35m
Rumpus Room: 3.3m x 3.075m
Bedroom 1: 3.12m x 3.215m
Bedroom 2: 3.4m x 3.175m
Bedroom 3: 3.3m x 3.215m
Main Bathroom (BATH): 3.72m x 1.985m
Balcony: 1.0m x 2.45m


